Gemeinsam planen, gemeinsam bauen, gemeinsam leben!
In der Franziskusstraße entsteht auf einer Grundstücksfläche von 2.063 m² ein Wohngebäude mit Tiefgarage.
Hier kann Ihr neues Zuhause entstehen.
Geplant sind:
- 2 Gebäudeteile mit jeweils 3 Geschossen, die über Laubengänge miteinander verbunden sind und über einen gemeinsamen Aufzug verfügen
- Es entstehen 19 barrierefreie Wohneinheiten mit KfW-Energieeffizienzstandard 55 zum Erwerb
- Die Wohngemeinschaft für bis zu 8 Menschen mit Handicap als Genossenschaftswohnung – Wohnungsgröße ca. 335 m²
- Angedachte Wohnungsgrößen von ca. 50 m² bis 125 m²
- Alle Wohnungen mit Balkon oder Terrasse in Richtung Süden mit unverbaubarem Blick in die Natur
- Tiefgarage
- Fahrradkeller
- Elektroladestation(en)
- evtl. Car-Sharing
Gemeinschaftsräume für Alle im Innen- und Außenbereich:
- Großer Gemeinschaftsraum im Erdgeschoß für gemeinsame Aktivitäten und Veranstaltungen
- Wasch- und Bügelraum
- Werkstatt
- Naturnaher Garten mit Spiel- und Begegnungsfläche
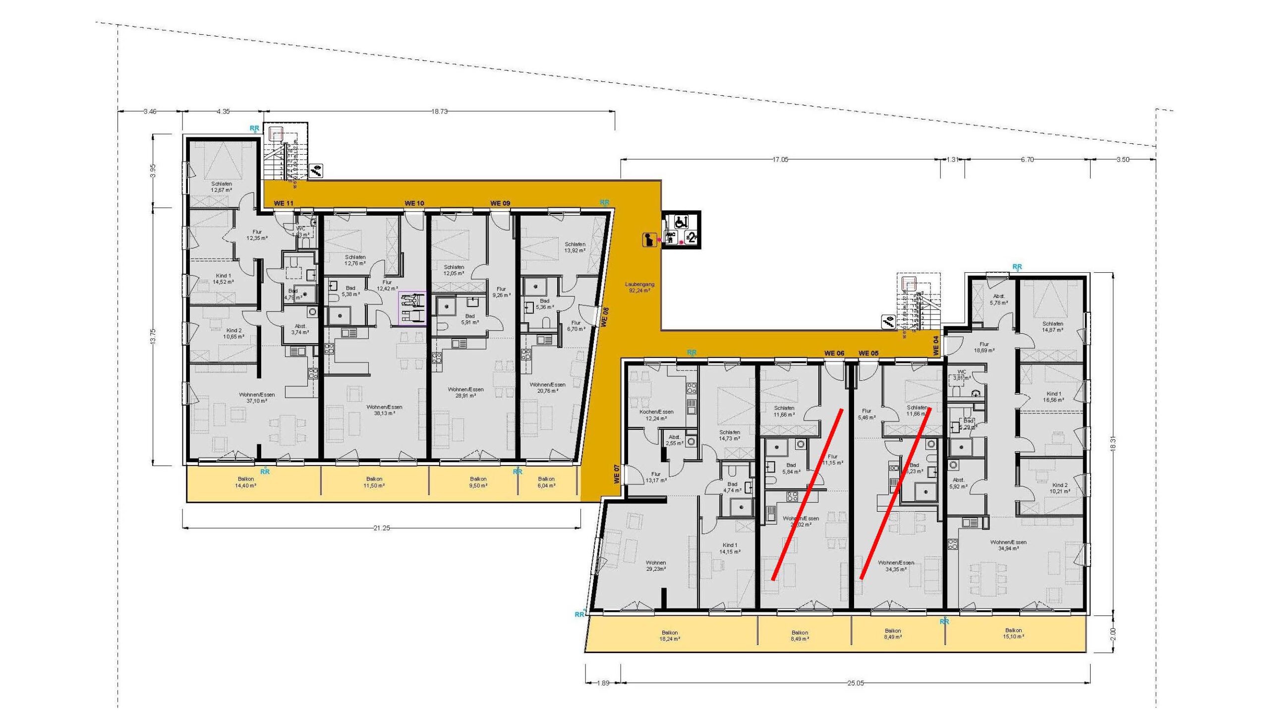
Die Grundrisse der 4 Ebenen
(Rot markierte Wohneinheiten sind bereits vorgemerkt)
Die Grundrisse sind für bessere Zoombarkeit auch als PDF zum Download verfügbar.
- Download Grundriss Untergeschoss
- Download Grundriss Erdgeschoss
- Download Grundriss Obergeschoss
- Download Grundriss Dachgeschoss
Der Preis je Quadratmeter Wohnfläche beläuft sich nach derzeitiger Baubeschreibung und aktueller Kostenschätzung auf ca. 5.400,- € bis 6.200,- € und beinhaltet die jeweiligen Anteile an den verschiedenen Gemeinschaftsräumen, zuzüglich 25.000,- € für einen Tiefgaragen- oder 12.500,- € für einen oberirdischen Stellplatz für einen PKW.










